Выбор модели унитаза становится очень непростой задачей при ремонте и обустройстве санузла. Производители сантехники предоставляют огромный выбор вариантов различных модификаций. На сегодняшний день, с точки зрения дизайна и эргономики, предпочтение отдается встроенным подвесным унитазам. Инсталляции в санузлах считаются самым оптимальным решением, которое можно использовать для помещений любых размеров и форм.
Что такое инсталляция и ее виды
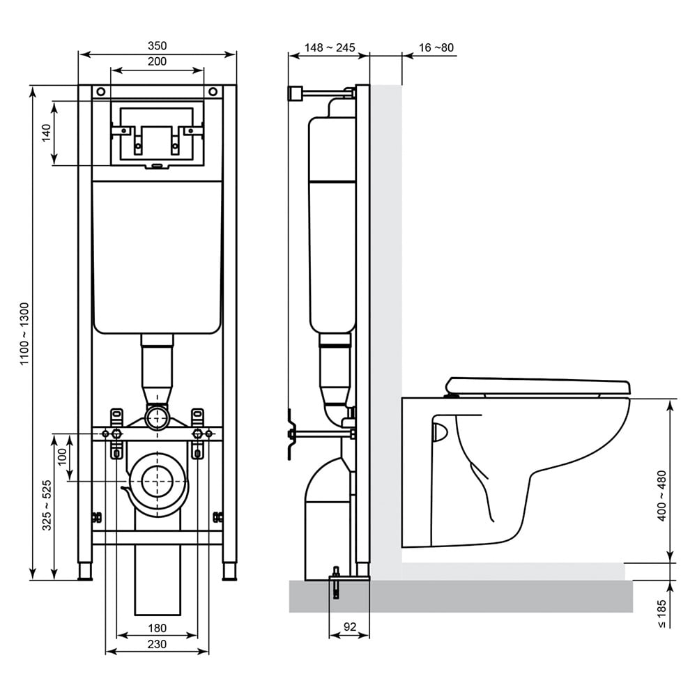
Инсталляцией называется конструкция в виде рамы, на которую крепится встроенный унитаз. Такой каркас утапливается в стену и прячется за перегородкой, в то время как сливная кнопка выводится на видимую часть стены.


Инсталляционные конструкции для встроенных унитазов представлены в двух видах:
- рамная инсталляция
Представляет собой цельную раму из стали, укомплектованную сливным бачком и кнопкой, и необходимыми крепежными элементами. Прочность конструкции позволяет крепить ее на стены из любых материалов, в том числе гипсокартон и пеноблок. Дополнительная жесткость обеспечивается за счет регулируемых ножек, которые крепятся в пол. Такая инсталляция дорогостоящая, но простая в монтаже, подходит для санузлов с любыми габаритами и надежно фиксируется на любых перегородках.


- блочная инсталляция
Более дешевый вариант инсталляции, состоящий из отдельных элементов, которые собираются между собой по принципу конструктора. Использовать такую конструкцию можно только на прочной несущей стене. В набор блочных инсталляций также входят крепления, бачок и сливная кнопка.


Из каких материалов делают подвесные унитазы
Подвесные унитазы изготавливают из самых разнообразных материалов, способных выдержать возложенную на них нагрузку. Поскольку дизайну ванных комнат уделяется особое внимание, благодаря внешнему виду унитаза санузлу можно придать очень стильный и эстетичный вид.
В каталогах производителей сантехники можно встретить подвесные унитазы выполненные из таких материалов:
- Фарфор
Высший сорт среди керамических изделий и самый высококачественный материал для изготовления любой сантехники. Характеризуется долгим сроком эксплуатации и лёгким уходом в части очистки. С течением времени не изменяют цвет и гармонично вписываются в различные дизайнерские стили.


- Фаянс
Также разновидность керамики, но с более низкими эксплуатационными характеристиками. Однако визуальная разница между фарфором и фаянсом не видна, поскольку поверхность фаянсовых изделий покрывают слоем глазури.


- Нержавеющая сталь
Такие навесные унитазы устанавливаются в общественных уборных, в виду своей «вечности», вне зависимости от механических воздействий и количества обработки очищающими веществами.


- Стекло
Достаточно дорогой материал для очень смелых дизайнерских решений. Эффектный вид такой чаши можно сохранить только благодаря постоянному уходу и обслуживанию.


- Искусственный и натуральный камень
Такие подвесные унитазы изготавливаются только под индивидуальный заказ и цена на них весьма кусается. Делают такие чаши из гранита, мрамора, травертина или оникса. Кроме нестандартного и роскошного вида, такие изделия имеют наилучшие эксплуатационные качества и экологичность.


Плюсы и минусы встроенных унитазов
Встроенные унитазы стали популярны благодаря своим явным преимуществам перед другими моделями. Из очевидных плюсов стоит отметить:
- простой монтаж;
- компактность — занимает очень маленькую площадь и экономит пространство для других видов сантехники;
- универсальность размещения — подходит для санузлов любой геометрической формы и размеров;
- декоративность — не портит внешний вид санузла громоздкими конструкциями раковин и сливных бачков. Позволяет цельно оформить напольное покрытие без надрезов, распилов и сколов;
- легкая уборка самой чаши и пространства под ней. Благодаря тому, что высота инсталляции регулируется, ее можно настроить на удобный для пользователя уровень и так, чтобы под чашей без проблем проходил робот-пылесос или полотер;
- прекрасно подходит под систему отопления «теплый пол».


Несмотря на все преимущества подвесных моделей унитазов, недостатки у них тоже имеются и сводятся к двум показателям:
- высокая цена;
- трудности устранения поломок. Однако эта проблема устранима, если в боксе для инсталляции заведомо предусмотреть небольшое окошко для технического обслуживания.
Монтаж инсталляции своими руками
И рамную и блоковую инсталляцию можно установить самостоятельно, по инструкции производителя, не прибегая к помощи профессиональных сантехников.
Однако, перед началом монтажа рамы, нужно обязательно провести подготовительные работы, которые связаны с проверкой системы канализации, поскольку после установки инсталляции доступ к инженерным канализационным сетям будет весьма ограничен.
Металлический стояк нужно обязательно заменить на пластиковый, как и всю систему труб и отводов. Вне зависимости от способа крепления пластиковых труб, абсолютно все стыки нужно пройти силиконовым или сантехническим герметиком. Дать ему просохнуть минимум сутки и несколько дней наблюдать за работой канализации на предмет подтеков. Устанавливать инсталляцию можно только после того, как все водные системы покажут свою надежность.


Блочная и рамная инсталляции имеют свои особенности монтажа, на которые нужно обратить внимание.
Монтаж рамной инсталляции пошаговая инструкция
- По схеме производителя собираем сам каркас рамы;
- Устанавливаем сливной бачок. При помощи пластиковой трубы или резиновой шланги стыкуем бачок с водопроводом. В зависимости от модели унитаза, отверстие через которое вода заливается в бачок может располагаться сбоку или снизу. Обратите внимание: если вы не планируете делать доступ к этому узлу через ревизионный люк, то ввод воды в бачок надо выполнить из трубы. Шланг можно использовать ТОЛЬКО если будет доступ для его проверки;


- Устанавливаем раму инсталляции. Рама крепится к полу за ножки. Предварительно нужно отрегулировать ее по уровню, чтобы не было перекосов. Высота установки может отличаться. Стандартом является высота поверхности крышки унитаза от чистового напольного покрытия. И составляет эта высота от 40 до 48 см;


- Крепим унитаз к стене металлическими шпильками с гайками.
- При помощи пластиковой трубы или гофры соединяем унитазный слив с канализацией;


- Зашиваем раму влагостойким картоном, который крепится на каркас из металлических профилей. В гипсокартонном коробе вырезаем технический люк для обслуживания и сливной кнопки;




- Устанавливаем накладную панель со сливной кнопкой на вырезанный люк;
- Чистовая отделка короба плиткой, краской, другим материалом;


Монтаж блочной инсталляции пошаговая инструкция
Установка блочной инсталляции схожа с рамочной в части порядка подключения и финишной декоративной отделки. Однако, есть нюансы на которые стоит обратить внимание при монтаже этого вида инсталляции:
- рама блочной инсталляции не имеет регулируемых ножек «в пол», поэтому прикрепить ее можно только к несущей капитальной стене. Гипсокартонные и другие легкие перегородки не выдерживают веса таких моделей унитаза;
- каркас рамы фиксируется на стене при помощи анкеров, под которые заранее пробуривают отверстия.


При монтаже и рамной и блочной инсталляций следует придерживаться инструкционных чертежей от производителя и обязательно герметизировать все стыки труб силиконом.
Также стоит обратить внимание, что длина патрубков для сливного бачка рассчитана на стандартный гипсокартонный короб. Но на практике она может оказаться короче или длиннее. Укоротить патрубок можно самостоятельно, а вот нарастить необходимую длину не удастся. В этом случае можно приобрести эту деталь от другой модели.
В комплект с инсталляцией обычно включен патрубок диаметром 90 мм, который стыкуется с канализационными разъемом диаметром в 110 мм, через переходник из резины или силикона.